House 31

Hi friends! I think it’s time to share my first house design!

Disclaimer: It’s not 100% finished. Originally, I wanted to post a house update every week. That quickly became “maybe every two weeks”… and now I’m thinking a monthly update might be more realistic! I’m still figuring out the schedule, so if you check in sporadically, there may be a surprise waiting for you! And spoiler alert: this first project has major “first pass in the sketchbook” kind of vibes.


A Quick Refresher

If you didn’t catch the last post: I’m designing houses inspired by the book Royal Barry Wills Houses (you can find it on Archive.org!). I’ve decided to name each design and blog post based on the page number of the house in the book.

I’m not aiming for 100% accuracy with these. While I love and appreciate vintage home design, I also think about how homes evolve — how they get added to, renovated, and reshaped to fit the lives of the people in them. That’s the approach I’m taking with these builds! Okay, Let’s dive in!

What we are working with:


Wills, Royal Barry “Page 31.” Archive.org. May 29, 2025. https://archive.org/details/HousesForHomemakers/page/n31/mode/2up

What we got:

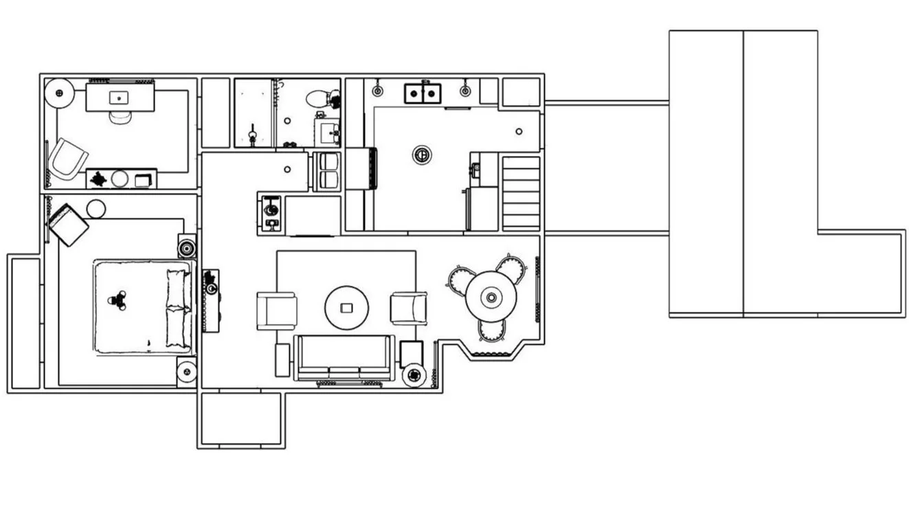
Floorplan of House 31

Design Notes for House 31

This house immediately struck me as an adorable little cottage. In today’s world, it probably best suits a single person or a couple. When designing it, I imagined a single, work-from-home woman living here:

  • A well-lit kitchen with a coffee bar

  • A teeny-tiny dining nook, perfect for a glass of wine or cup of coffee with your girlies

  • A comfy green couch (non-negotiable) for TV binges

  • A decently sized office that, let’s be honest, does not double well as a guest room. I tried fitting a single bed in there even without the desk - it just worked with a nightstand squeezed in, but barely.

  • Enlarged primary closet to better suit today’s standards

  • Attempted to draw the garage, with hopes of working in a little pass-through patio — but I ran out of time to explore that fully… oops!

  • I dreamed about adding a funky 70s wall-mounted shelving unit by the front door — sadly, it didn’t quite work out in this one.

  • I really wanted to find a spot for laundry, but… where? I’m not a fan of stacking units unless necessary. I considered putting them by the linen closet next to the bathroom, but it just wasn’t deep enough.


Learning Curve & What’s Next

This was a bit of a tester project, especially when it came to exporting photos! This is not my normal. I work in LayOut for dimensions and style uniformity, but I’ve been playing around more in SketchUp itself. There are so many great options in SKP itself, and I got overwhelmed with the options, trying them all instead. I’m going to buckle down on the next one - this was just for fun!!

In future projects, I’d love to:

  • Make a dedicated Pinterest board for materials and inspiration… I freestyled on this one!

  • Experiment more with rendering software (once I get my bearings lol)

  • Refine my process and get a proper schedule going.

Anyway, thanks for hanging out with me and taking a peek at this little house! I’m still figuring things out as I go (aren’t we all?), but it’s been fun to see it all come together. If you’ve got thoughts, ideas, or just want to say hi, send them my way!

See you next time — whenever that may be!

Previous
Previous

House 32

Next
Next

New Beginnings